南欧スタイル輸入住宅 PLAN W36SA

PLAN W36SAの外観イメージ
PLAN W36SAの外観図
設定仕様価格 2,540 万円(税抜)
3.3m2当り価格 69.03 万円/坪
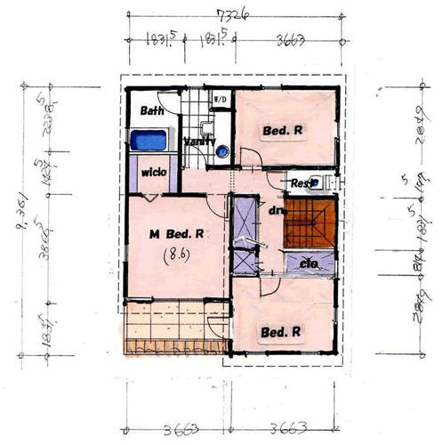
1F床面積 60.08 m2  
2F床面積 61.56 m2  
延床面積 121.64 m2 (36.8 坪)
1F PLAN 2F PLAN
その他見積に含まれる内容別途費用内容
設定仕様

構造・外部仕様

構造材 1F

  • SPF(スプルスパインファー)KD(キルンドライ)材
  • 土台:404(セルボ防腐処理材)基礎パッキン仕様
  • 床根太:210
  • 床下地合板:28mm T&G合板 CSP(4×8)
  • スタッド:204(@406)フィートモジュール

構造材 2F

  • 床根太:210
  • 床下地合板:19mm T&G合板 CSP(4×8)
  • スタッド:204 天井根太:206
  • 野地合板:12mm合板CSP 垂木:208

基礎

  • 鉄筋コンクリート ベタ基礎
  • 立ち上がりGL+400
  • 土間コンクリート 100mm

屋根

  • S瓦葺き
  • 塩ビ雨樋

外壁

  • ラスモルタル下地 オメガ塗壁システム
  • 下地透湿防水シート貼

ポーチ

  • テラコッタタイル(300角)

断熱材

  • ノンフロン水発泡断熱材(アクアフォーム)
  • 外壁:アクアフォーム70mm
  • 屋根:アクアフォーム100mm
  • 1F床:スタイロフォーム50mm

通気層

  • 外壁と構造壁パネル間に通気層(18mm胴縁)

窓飾りシャッター

  • カセドラルルーバーシャッター

バルコニー

  • FRP防水 モルタル仕上
  • 手摺:アルミ手摺

ドア・ウィンドウ仕様

玄関ドア

  • Distinction ファイバーグラスドア

勝手口ドア

  • Peachtree 断熱スチールドア

ウィンドウ

  • Pella アルミ被覆木製ペアガラスサッシ
  • (Low-Eガラス、アルゴンガス封入)

内部ドア

  • PREMDOR ホロコアドア
  • コロニスト
  • コロニストバイフォールド

1F内部仕上

エントランス

  • 床:テラコッタタイル(300角)
  • 壁:クロス貼
  • 天井:クロス貼

ホール

  • 床:19mmオークフローリング ウレタン仕上(ROBBINS)
  • 壁:クロス貼
  • 天井:クロス貼

リビング

  • 床:19mmオークフローリング ウレタン仕上(ROBBINS)
  • 壁:ドライウォール
  • 天井:ドライウォール

ダイニング

  • 床:19mmオークフローリング ウレタン仕上(ROBBINS)
  • 壁:ドライウォール
  • 天井:ドライウォール

キッチン

  • 床:19mmオークフローリング ウレタン仕上(ROBBINS)
  • 壁:クロス貼 一部タイル貼
  • 天井:クロス貼

ベッドルーム

  • 床:19mmオークフローリング ウレタン仕上(ROBBINS)
  • 壁:クロス貼
  • 天井:クロス貼

ベッドルーム クローゼット

  • 床:19mmオークフローリング ウレタン仕上(ROBBINS)
  • 壁:クロス貼
  • 天井:クロス貼

トイレ

  • 床:クッションフロア
  • 壁:クロス貼
  • 天井:クロス貼

階段室 1F〜2F

  • 階段:ヘム材
  • 壁:クロス貼
  • 天井:クロス貼

階段材

  • FITTS Stair System(ヘム材)
  • オーバーザポストシステム
  • トレッド(段板)、ライザー(蹴込板)
  • ニューエル(親柱)、バラスター(子柱)
  • ランディングトレッド(框)

2F内部仕上

ホール

  • 床:15mmカバザクラ無垢フローリング ウレタン仕上
  • +遮音シート4mm
  • 壁:クロス貼
  • 天井:クロス貼

マスターベッドルーム

  • 床:15mmカバザクラ無垢フローリング ウレタン仕上
  • +遮音シート4mm
  • 壁:クロス貼
  • 天井:クロス貼

ウォークイン クローゼット

  • 床:15mmカバザクラ無垢フローリング ウレタン仕上
  • +遮音シート4mm
  • 壁:クロス貼
  • 天井:クロス貼

ベッドルーム(1)(2)

  • 床:15mmカバザクラ無垢フローリング ウレタン仕上
  • +遮音シート4mm
  • 壁:クロス貼
  • 天井:クロス貼

ベッドルーム(1)(2)クローゼット

  • 床:15mmカバザクラ無垢フローリング ウレタン仕上
  • +遮音シート4mm
  • 壁:クロス貼
  • 天井:クロス貼

ヴァニティ

  • 床:クッションフロア+遮音シート4mm
  • 壁:クロス貼
  • 天井:クロス貼

トイレ

  • 床:クッションフロア+遮音シート4mm
  • 壁:クロス貼
  • 天井:クロス貼

設備仕様

浴室

  • TOTO ユニットバス KYシリーズ(1616サイズ)

システムキッチン

  • TOTO システムキッチン スタイルF

ヴァニティキャビネット(洗面台)

  • TOTO 洗髪洗面化粧台
  • TOTO 一面化粧ミラー

トイレ(1F・2F)

  • 便器:TOTO ZC1 ウォシュレット一体型便器

サニタリーアクセサリー

  • タオルバー、タオルリング、ペーパーホルダー(INAX)

洗濯水栓、防水パン

  • 単水栓、防水パン(INAX)

ガス給湯器

  • ノーリツ ユコア24号壁掛
  • 2リモコン(浴室、キッチン)

電気設備

  • 分電盤 14回路(単相100V)

インターホン

  • ハンズフリーカラーテレビドアホン(松下)

火災報知機

  • 煙式(キッチン、ベッドルーム、階段室のみ)

24時間計画換気設備

  • 第3種計画換気システム
  • ルフロ排気型集中システム