高級輸入住宅 ヴァイスロイ

高級輸入住宅 ヴァイスロイの外観
ヴァイスロイ写真 ヴァイスロイ写真 ヴァイスロイ写真
ヴァイスロイ写真 ヴァイスロイ写真 ヴァイスロイ写真
ヴァイスロイ写真 ヴァイスロイ写真 ヴァイスロイ写真
ヴァイスロイ写真 ヴァイスロイ写真 ヴァイスロイ写真
設定仕様価格 4,198 万円(税抜)
3.3m2当り価格 72.3 万円/坪
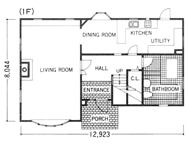
1F床面積 97.52 m2  
2F床面積 94.43 m2  
延床面積 191.95 m2 (58.1 坪)
高級輸入住宅 ヴァイスロイの外観図
1F PLAN 2F PLAN
その他見積に含まれる内容別途費用内容
輸入住宅コストシミュレーション設定仕様

構造・外部仕様

構造材 1F

  • D-Fir(ダグラスファー)KD(キルンドライ)材
  • 土台:406(米ヒバ集成材/防腐処理材)基礎パッキン仕様
  • 床根太:408(米ヒバ集成材)
  • 床下地合板:28mm T&G合板DFP(4×8)
  • 外周スタッド:206(@406)フィートモジュール
  • 内部スタッド:204(@406)フィートモジュール

構造材 2F

  • 床根太:212 一部2-212
  • 床下地合板:19mm T&G合板 CSP(4×8)
  • 外周スタッド:206(@406)フィートモジュール
  • 内部スタッド:204(@406)フィートモジュール
  • 天井根太:206
  • 野地合板:12mm合板CSP 垂木:208

基礎

  • 鉄筋コンクリート ベタ基礎
  • 立ち上がりGL+400
  • 土間コンクリート 100mm

屋根

  • カラーベストコロニアルクァッド
  • 塩ビ雨樋

外壁

  • レッドウッドサイディング、コーナー同質役物(無塗装品)
  • AEP塗装仕上

ポーチ

  • テラコッタタイル(300角)

断熱材

  • ノンフロン水発泡断熱材(アクアフォーム)
  • 外壁:アクアフォーム100mm
  • 屋根:アクアフォーム120mm
  • 1F床:スタイロフォーム50mm

通気層

  • 外壁と構造壁パネル間に通気層(18mm胴縁)

煙突/飾り煙突

  • 1箇所 煙突外壁レンガタイル貼

玄関飾りシャッター/妻飾り

  • カセドラルルーバーシャッター
  • ウィンドウヘッド
  • プレーンペディメント
  • クロスヘッド/ピラスター

ドア・ウィンドウ仕様

玄関ドア

  • Peachtree 断熱スチールドア

勝手口ドア

  • Peachtree 断熱スチールドア

ウィンドウ

  • Pella アルミ被覆木製ペアガラスサッシ
  • (Low-Eガラス、アルゴンガス封入)

内部ドア

  • 木製内部ドア/バイフォールドドア

1F内部仕上

エントランス

  • 床:テラコッタタイル(300角)
  • 壁:クロス貼
  • 天井:クロス貼

ホール

  • 床:19mmオークフローリング ウレタン仕上(ROBBINS)
  • 壁:クロス貼
  • 天井:クロス貼

リビング

  • 床:19mmオークフローリング ウレタン仕上(ROBBINS)
  • 壁:ドライウォール
  • 天井:ドライウォール

ダイニング

  • 床:19mmオークフローリング ウレタン仕上(ROBBINS)
  • 壁:クロス貼
  • 天井:クロス貼

キッチン

  • 床:19mmオークフローリング ウレタン仕上(ROBBINS)
  • 壁:ドライウォール 一部タイル貼
  • 天井:クロス貼

バスルーム/ヴァニティ/トイレ

  • 床:300角タイル貼
  • 壁:100角タイル貼
  • 天井:バスリブ

階段室

  • 階段:オーク材
  • 壁:クロス貼
  • 天井:クロス貼

階段材

  • FITTS Stair System(ヘム材)
  • ポストトゥポストシステム
  • トレッド(段板)、ライザー(蹴込板)
  • ニューエル(親柱)、バラスター(子柱)
  • ランディングトレッド(框)

2F内部仕上

ホール

  • 床:15mmカバザクラ無垢フローリング ウレタン仕上
  • +遮音シート4mm
  • 壁:クロス貼
  • 天井:クロス貼

マスターベッドルーム/スタディ

  • 床:15mmカバザクラ無垢フローリング ウレタン仕上
  • +遮音シート4mm
  • 壁:クロス貼
  • 天井:クロス貼

ウォークインクローゼット

  • 床:15mmカバザクラ無垢フローリング ウレタン仕上
  • +遮音シート4mm
  • 壁:クロス貼
  • 天井:クロス貼

ベッドルーム(1)(2)

  • 床:15mmカバザクラ無垢フローリング ウレタン仕上
  • +遮音シート4mm
  • 壁:クロス貼
  • 天井:クロス貼

ベッドルーム(1)クローゼット

  • 床:15mmカバザクラ無垢フローリング ウレタン仕上
  • +遮音シート4mm
  • 壁:クロス貼
  • 天井:クロス貼

ヴァニティ/シャワールーム

  • 床:クッションフロア+遮音シート4mm
  • 壁:クロス貼
  • 天井:クロス貼

設備仕様

浴室(在来浴室)

  • 在来浴槽
  • シャワー水栓 サーモスタット付
  • 浴室排水ユニット
  • 2Fシャワーユニット

システムキッチン

  • 輸入キッチン オーク無垢面材
  • 人工大理石カウンター

ヴァニティキャビネット(バスルーム)

  • ペデスタル洗面器(アメリカンスタンダード)

2Fヴァニティキャビネット(洗面台)

  • 輸入ヴァニティキャビネット オーク無垢面材
  • 人工大理石カウンター

トイレ(1F・2F)

  • 便器:TOTO ZC1 ウォシュレット一体型便器

サニタリーアクセサリー

  • タオルバー、タオルリング、ペーパーホルダー(INAX)
  • 浴室ミラー

洗濯水栓、防水パン

  • 単水栓、防水パンPF-8064A(INAX)

ガス給湯器

  • ノーリツ ユコア24号壁掛
  • 2リモコン(浴室、キッチン)

電気設備

  • 分電盤 20回路(単相100V)

インターホン

  • ハンズフリーカラーテレビドアホン(松下)

火災報知機

  • 煙式(キッチン、ベッドルーム、階段室のみ)

暖炉

  • 薪暖炉正面型(1箇所) 二重煙突
  • 暖炉前:大理石貼
  • ファイアーセット ウッドバスケット

24時間計画換気設備

  • 第3種計画換気システム
  • ルフロ排気型集中システム