

| 設定仕様価格 | 3,262 万円(税抜) |
|---|---|
| 3.3m2当り価格 | 70.03 万円/坪 |
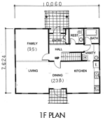
| 1F床面積 | 75.7 m2 | |
|---|---|---|
| 2F床面積 | 78.29 m2 | |
| 延床面積 | 153.99 m2 | (46.6 坪) |
間取図をクリックすると拡大図面を見ることができます



構造・外部仕様 | |
構造材 1F
![]() 構造材 2F
![]() 基礎
![]() 屋根/ポーチ屋根
![]() 外壁
![]() |
ポーチ
![]() テラス
![]() 断熱材
![]() 通気層
![]() 飾り煙突
![]() 窓飾りシャッター/妻飾り
![]() |
ドア・ウィンドウ仕様 | |
玄関ドア
![]() 勝手口ドア
![]() |
ウィンドウ
![]() 内部ドア
![]() |
1F内部仕上 | |
エントランス
![]() ホール
![]() リビング/ダイニング/ファミリールーム
![]() キッチン
![]() |
ヴァニティ(洗面所)
![]() トイレ
![]() 階段室 1F〜2F
![]() 階段材
![]() |
2F内部仕上 | |
ホール
![]() マスターベッドルーム/スタディ
![]() ウォークインクローゼット
![]() |
ベッドルーム(1)(2)
![]() ベッドルーム(1)(2)クローゼット
![]() トイレ
![]() |
設備仕様 | |
浴室
![]() システムキッチン
![]() ヴァニティキャビネット(洗面台)
![]() トイレ(1F・2F)
![]() トイレ手洗キャビネット(1F・2F)
![]() |
サニタリーアクセサリー
![]() 洗濯水栓、防水パン
![]() ガス給湯器
![]() 電気設備
![]() インターホン
![]() 火災報知機
![]() 24時間計画換気設備
![]() |






