TYPE R - R58S -

様々なサイズ・間取りのプランをご用意して
おりますので、ご検討の際にお役立て下さい。
※ 敷地、予算、世帯数等ご希望に応じて変更
できますので、お気軽にご相談下さい。

TYPER

TYPE R プラン一覧にもどる

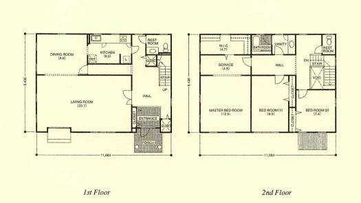
■平面図

平面図をクリックすると拡大表示します

■パース